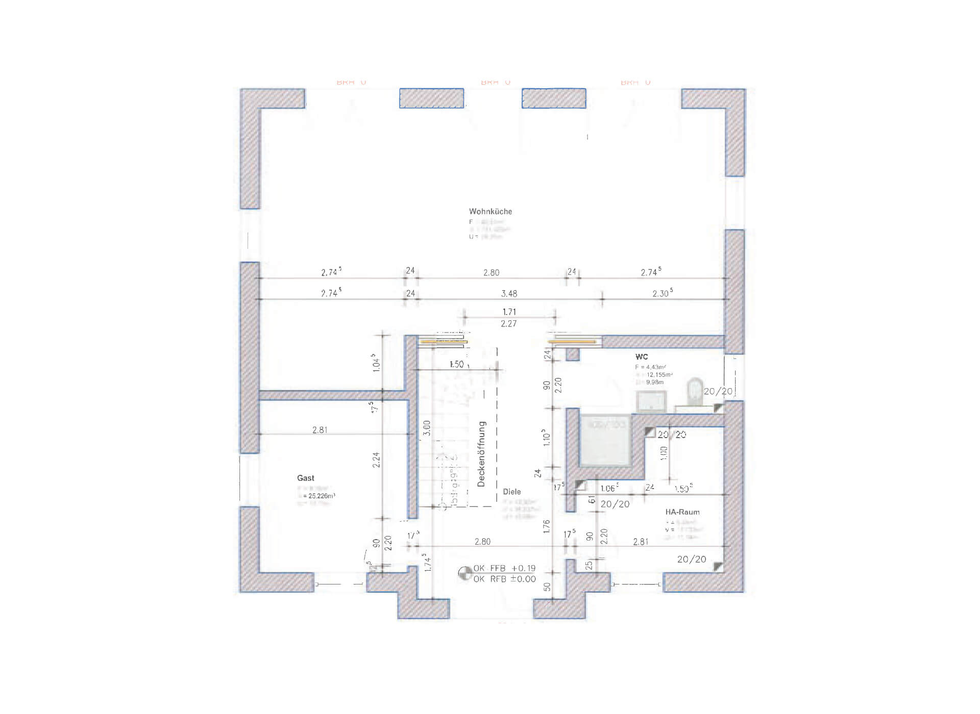
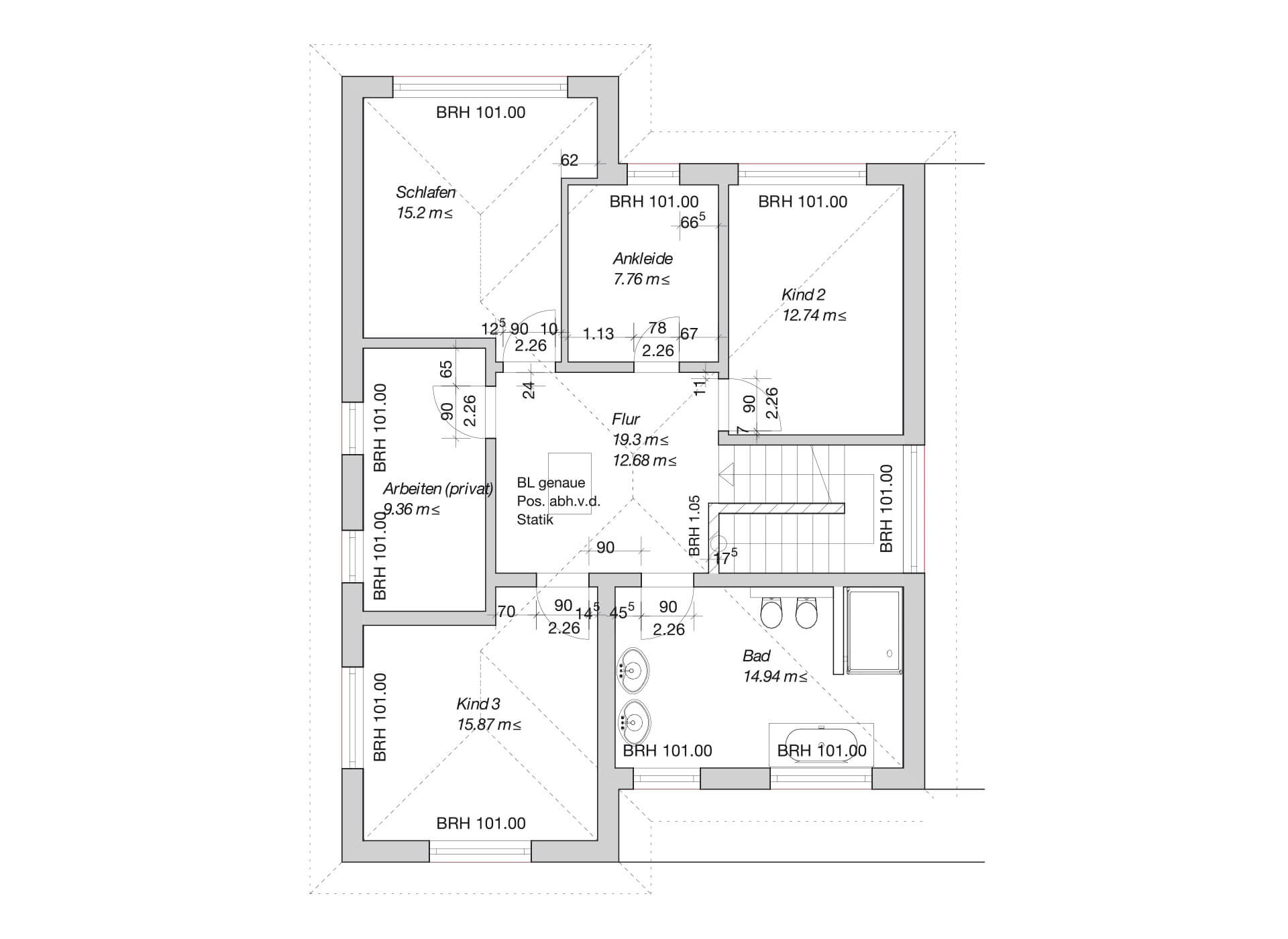
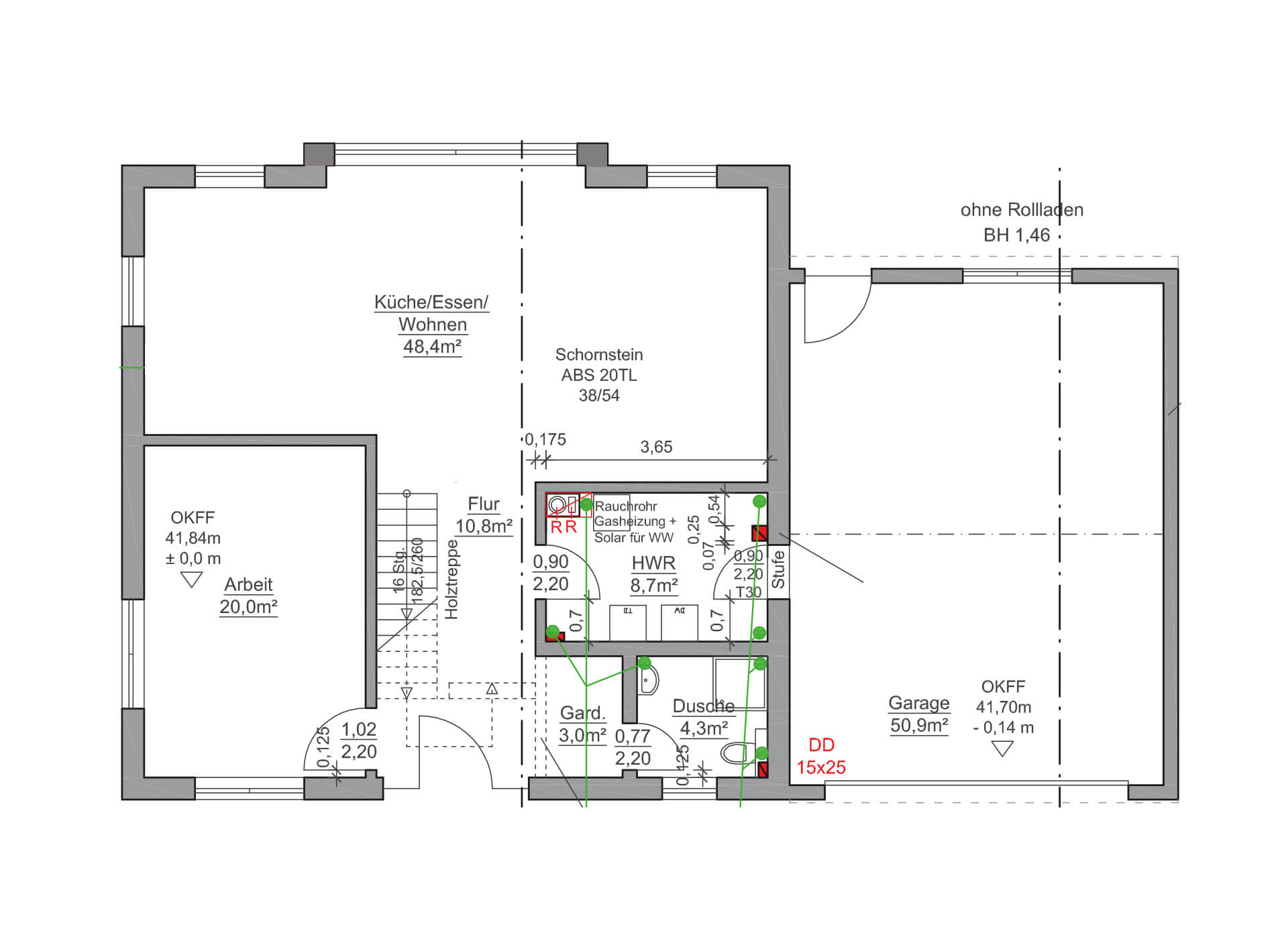
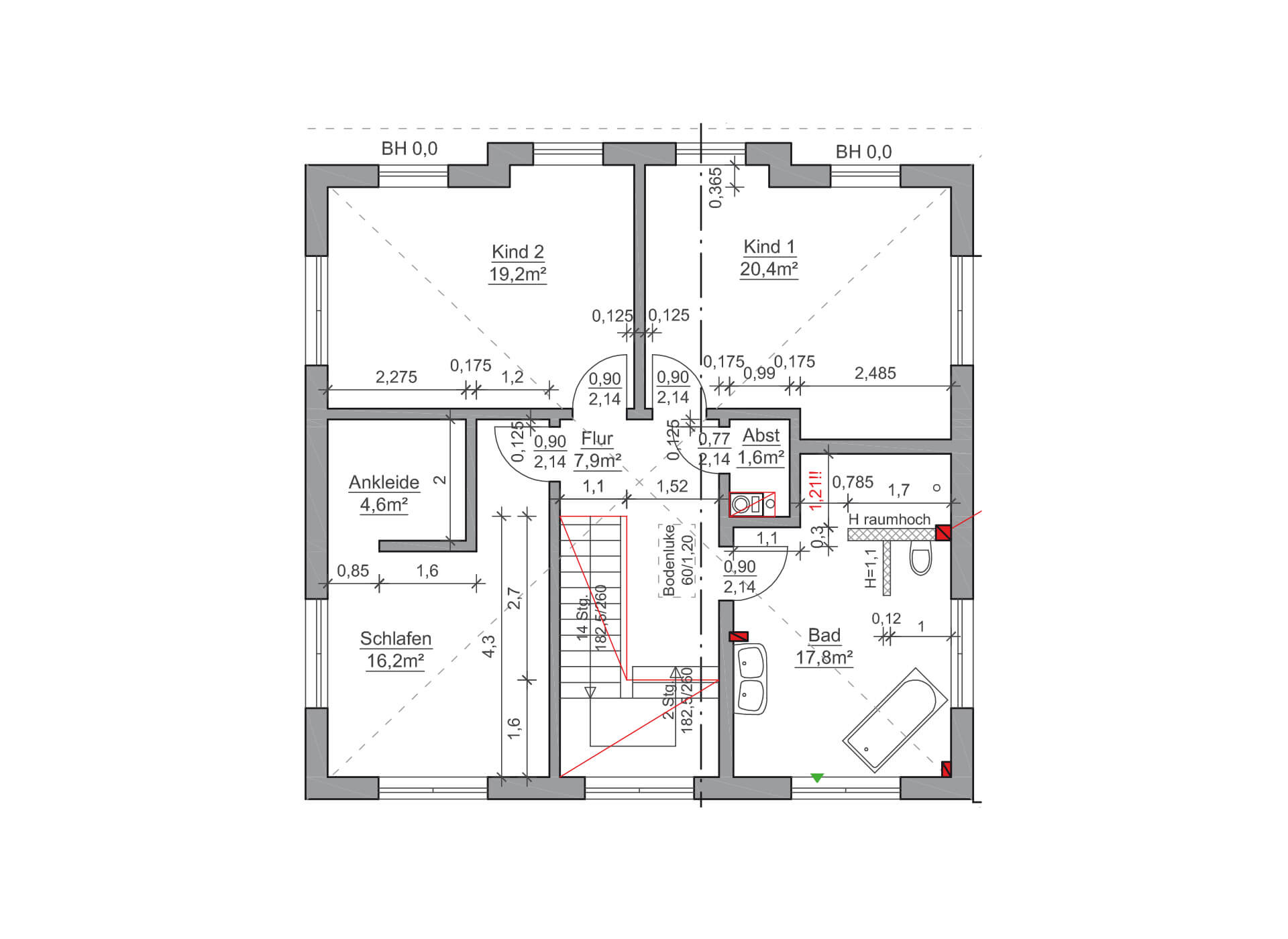
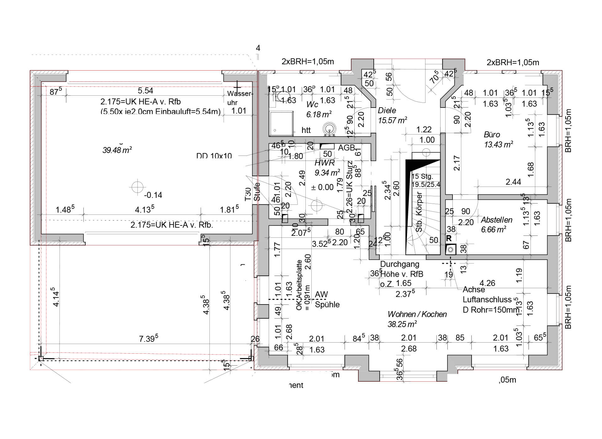
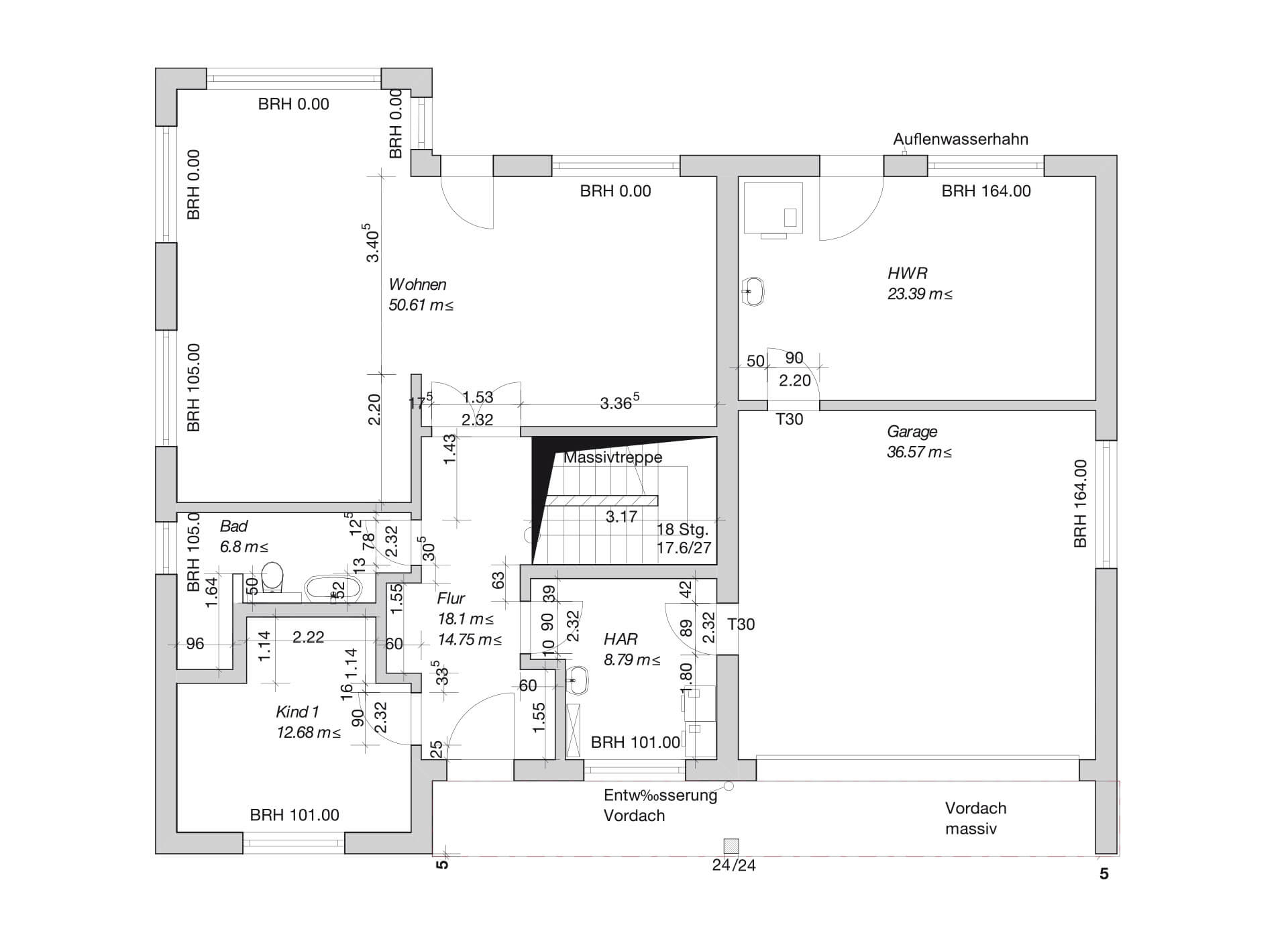
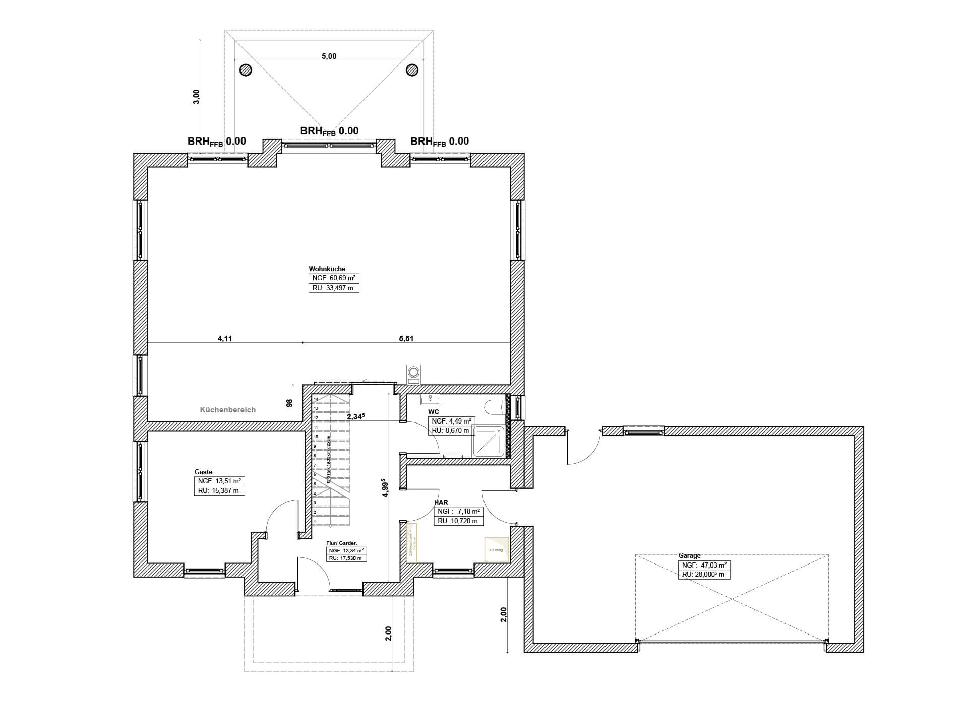
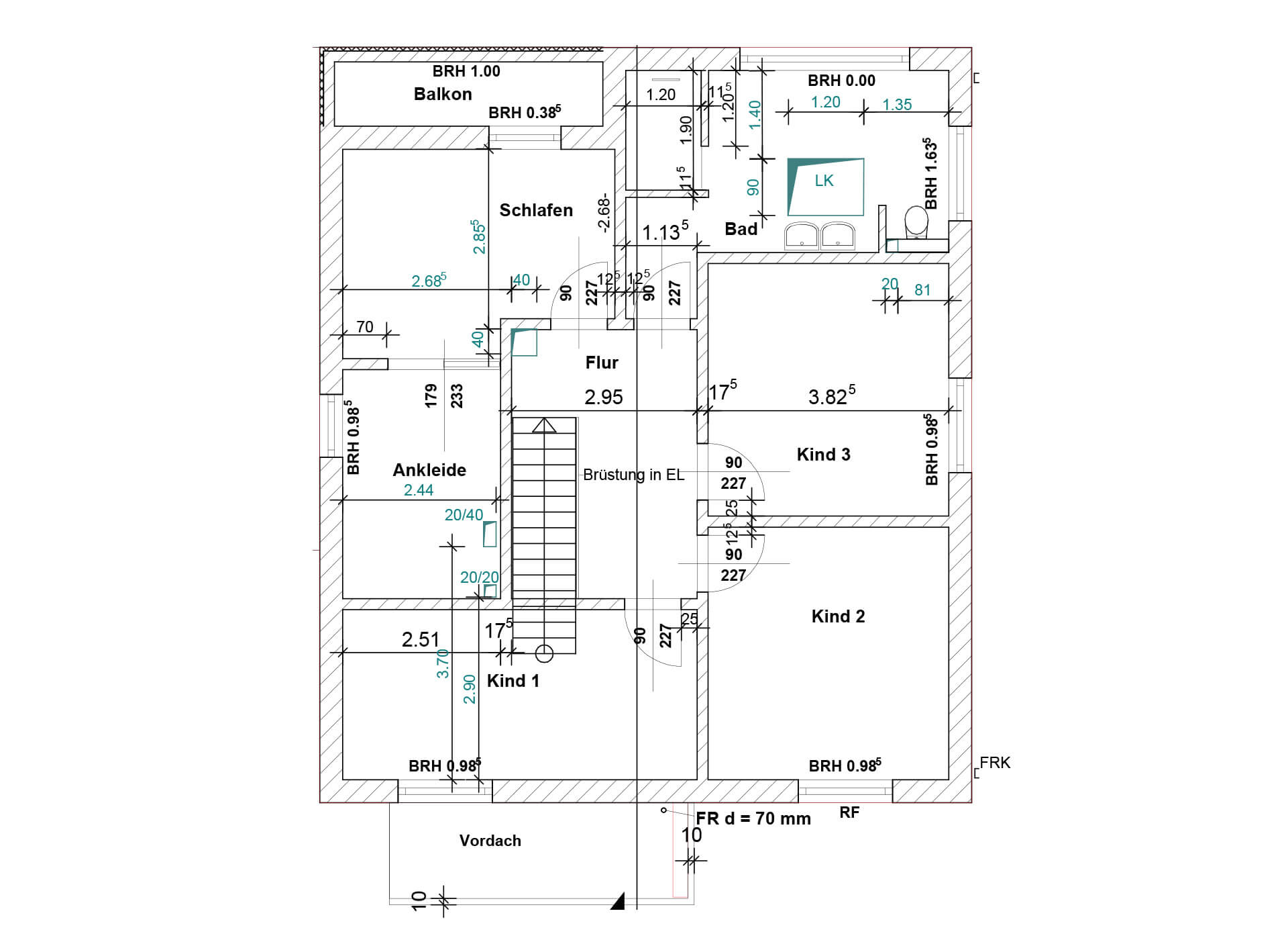
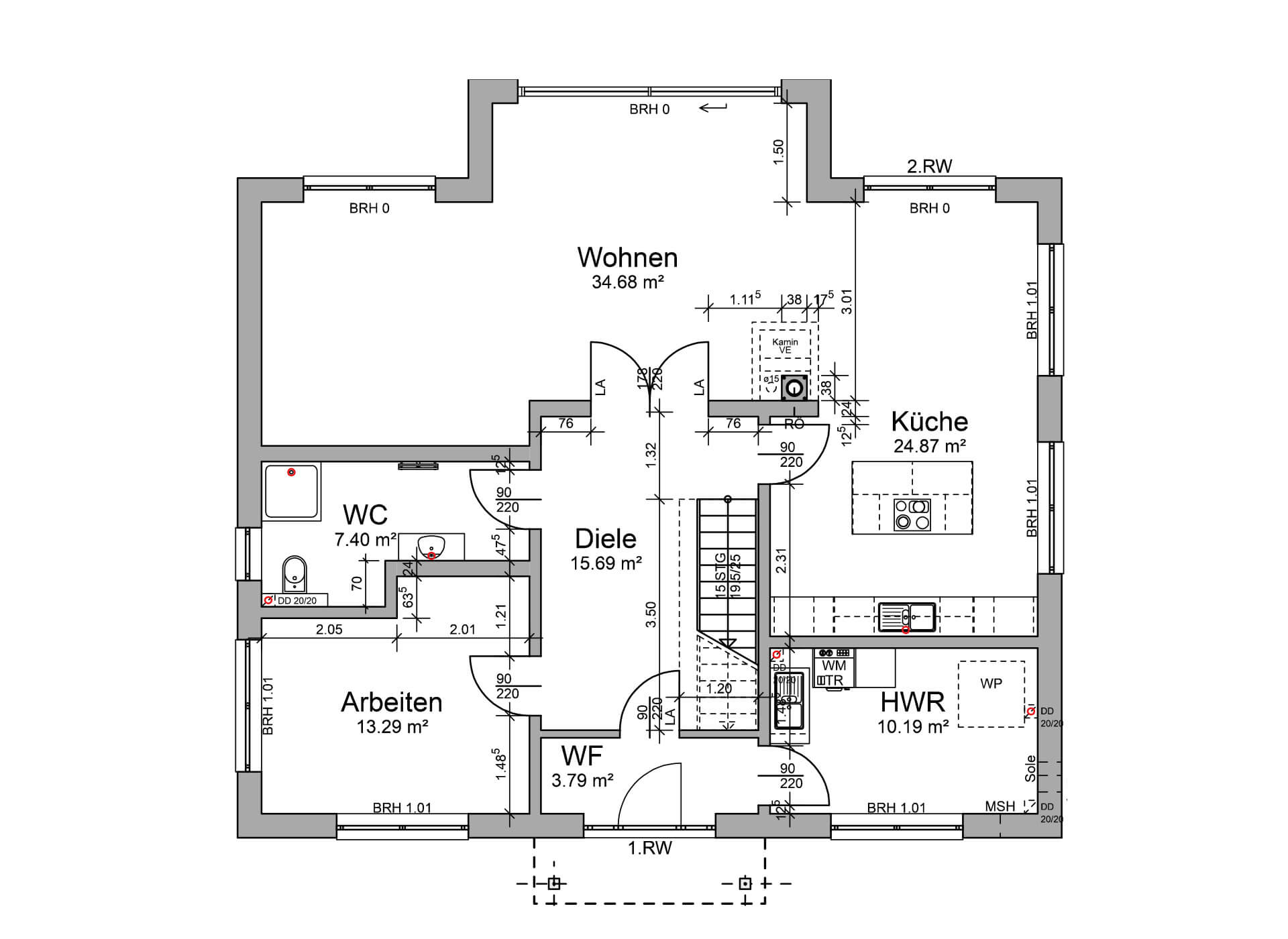
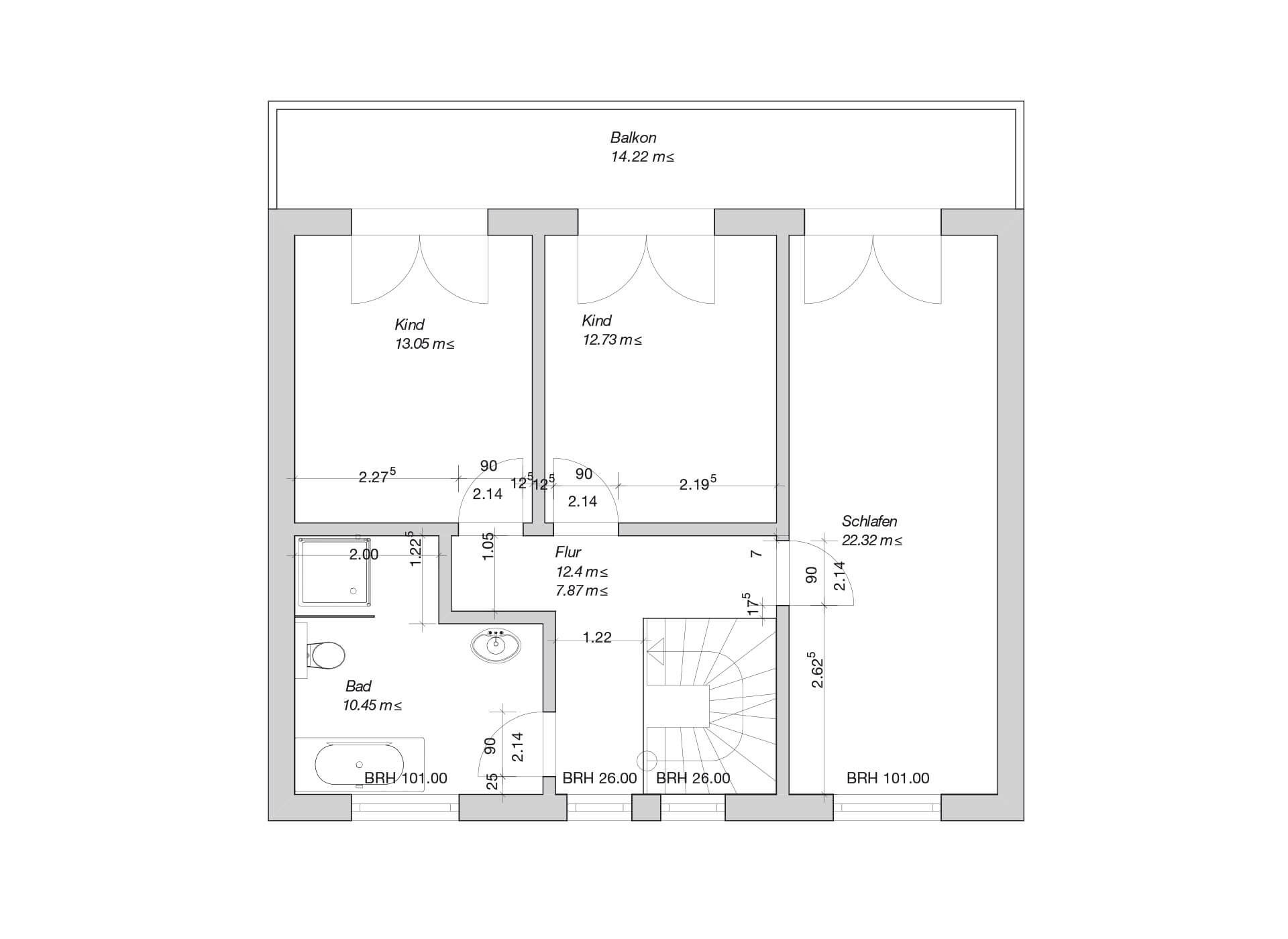
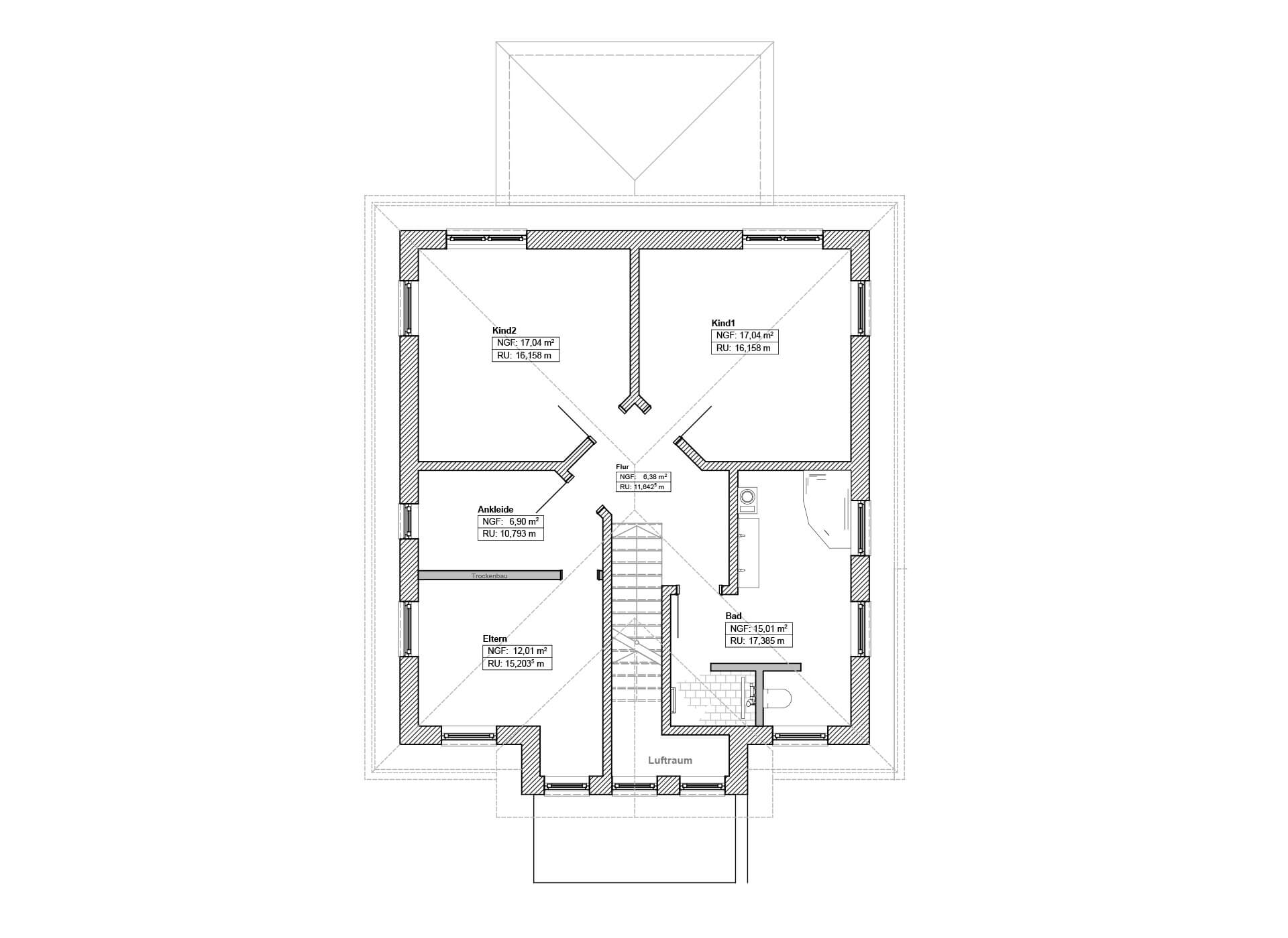
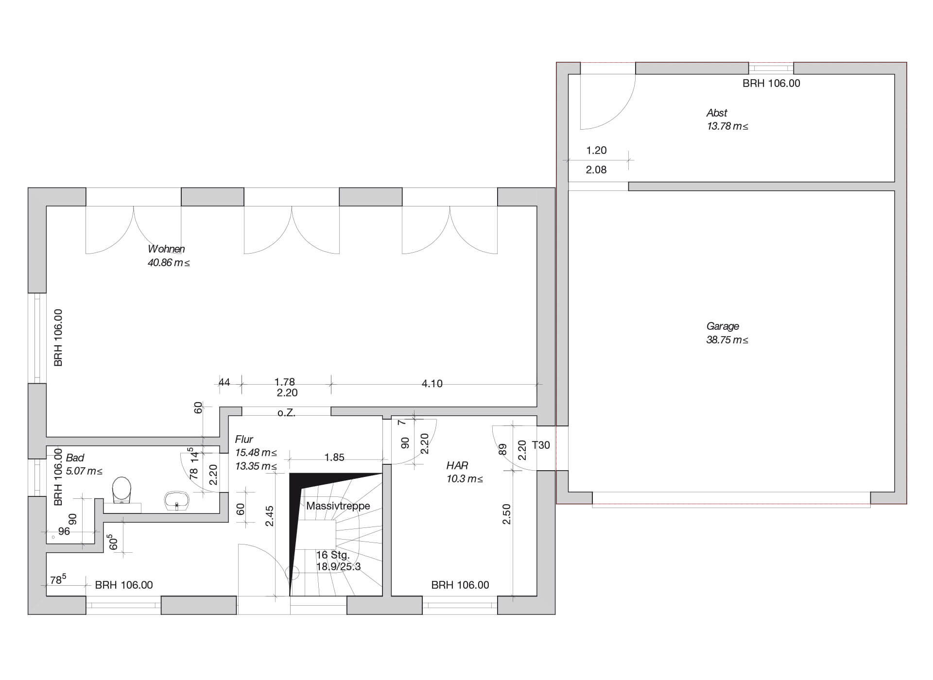
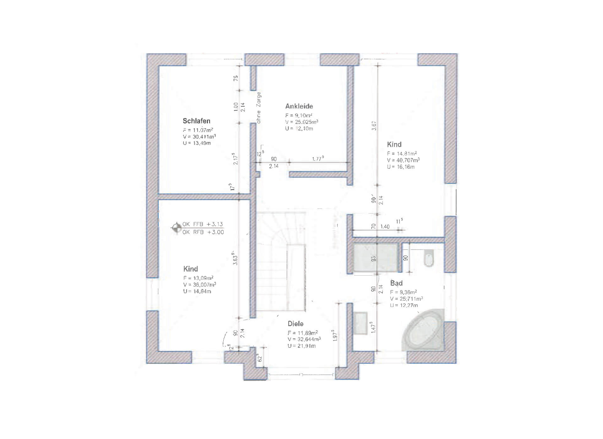
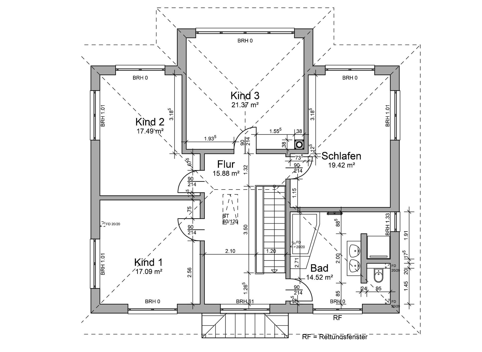
Abgebildet sind mögliche Grundrissvarianten, sie stellen Gestaltungsvorschläge dar. Ihr Haus wird ganz individuell für Sie geplant. Die Abbildungen zeigen z.T. auch Sonderausstattungen. Kontaktieren Sie uns gern für Ihre detaillierten Fragen.
VERONA XL
Stadtvilla mit Erker in Satteldachausführung und Vordach
Wohnfläche ca. 145 m²
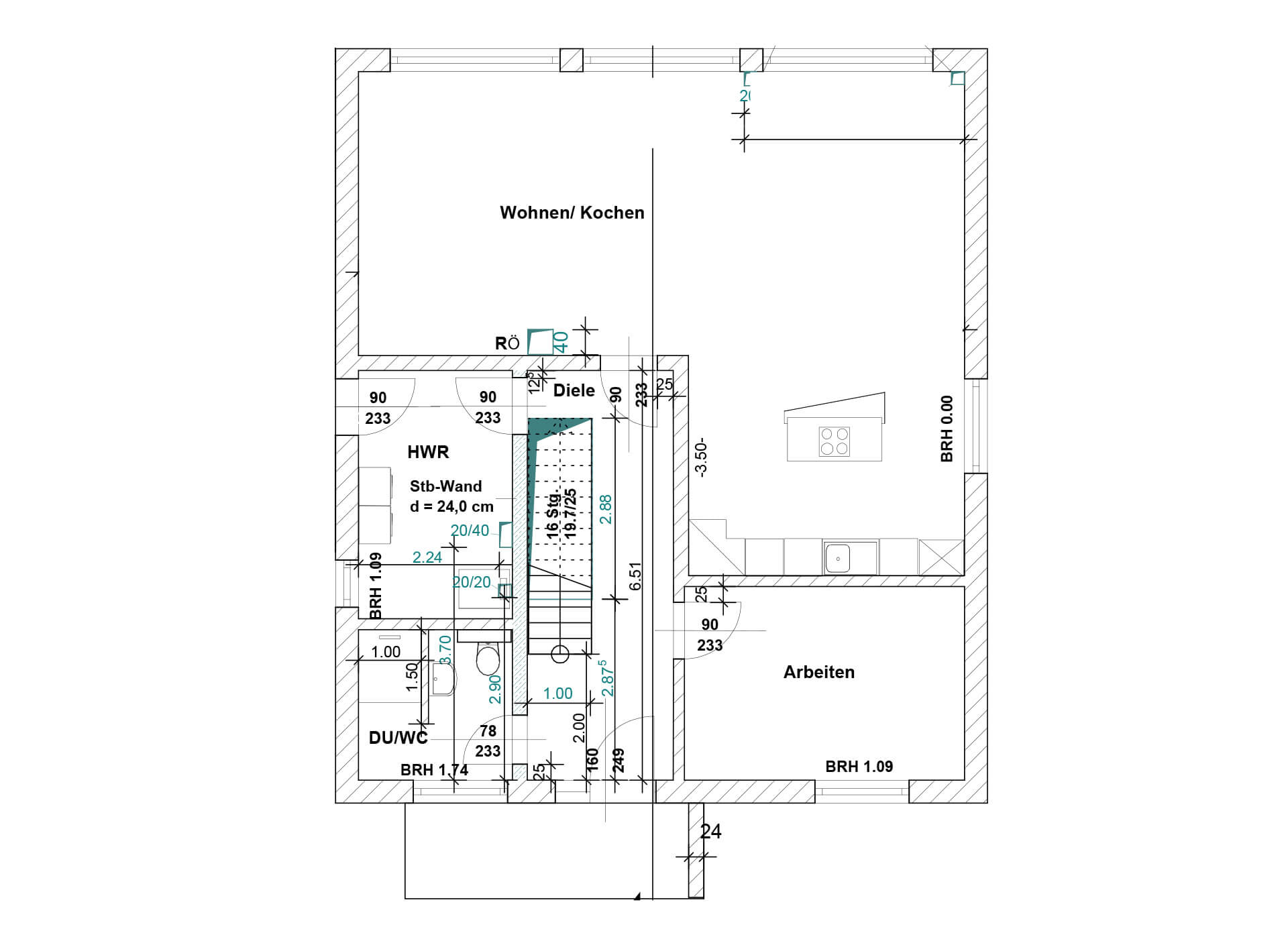
VERONA XL PULTDACH
Stadtvilla mit Pultdach und Balkon
Wohnfläche ca. 140 m²
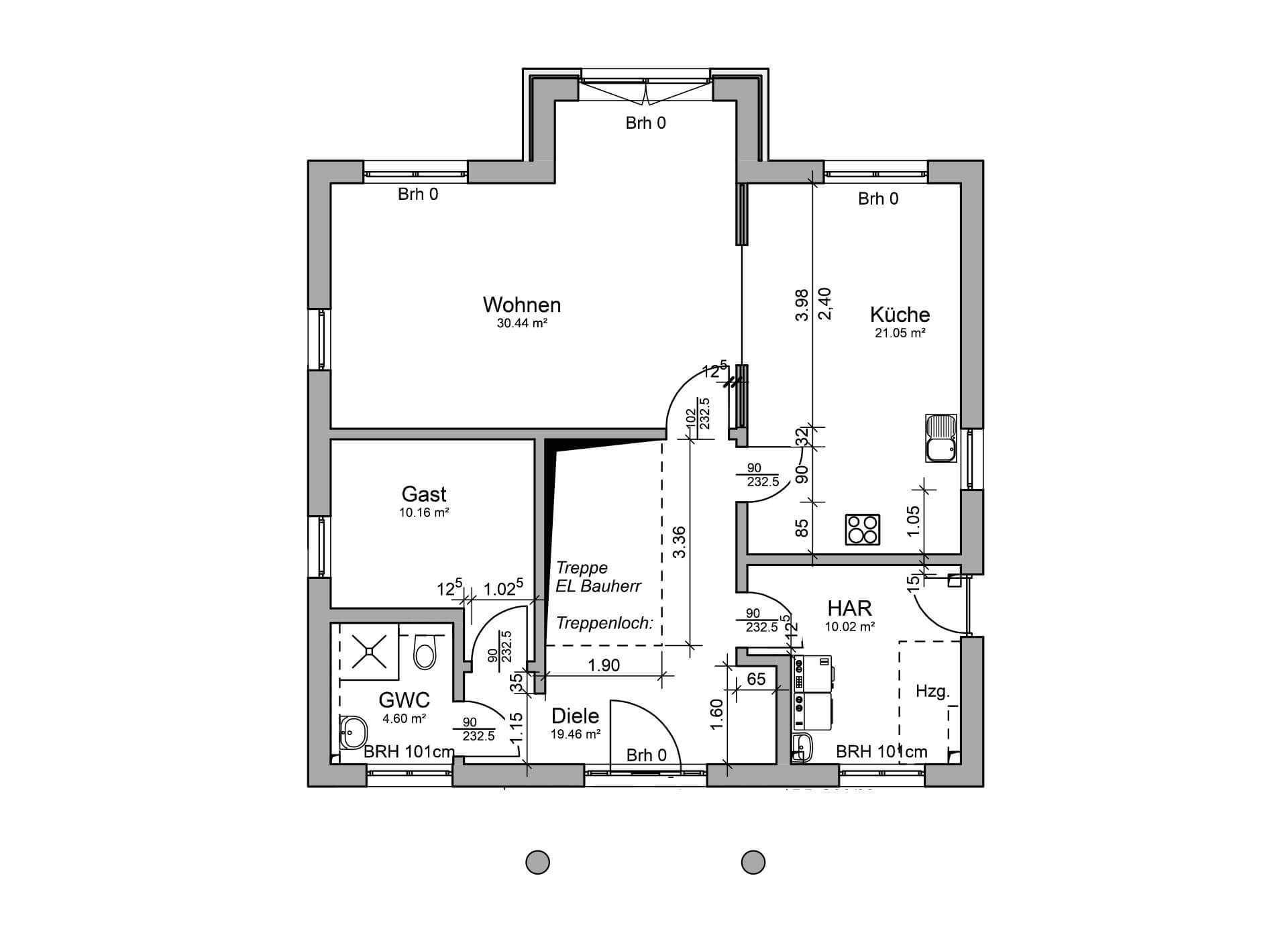
LIVIA XL
Stadtvilla im italienischen Stil mit zwei Erkern und Teilverklinkerung
Wohnfläche ca. 165 m²
LIVIA XXL
Stadtvilla im italienischen Stil mit Erker, Kragplattenvordach
und rückseitiger Walmdach-Terrassen-Überdachung
Wohnfläche ca. 174 m²
GLORIA
Stadtvilla mit angedeutetem Erker
Wohnfläche ca. 183 m²
GLORIA MIT KLINKER-ERKER
Stadtvilla mit verklinkertem Erker
Wohnfläche ca. 184 m²
GLORIA XL 196
Stadtvilla mit Flachdachausführung und Attika
Wohnfläche ca. 196 m²
GLORIA XL 205
Stadtvilla mit seitlichem Erker und Kragplatte über Eingangsbereich und Garage