BUNGALOW

Abgebildet sind mögliche Grundrissvarianten, sie stellen Gestaltungsvorschläge dar. Ihr Haus wird ganz individuell für Sie geplant. Die Abbildungen zeigen z.T. auch Sonderausstattungen. Kontaktieren Sie uns gern für Ihre detaillierten Fragen.

DALINA

Bungalow – klein und kompakt

Wohnfläche ca. 88 m²

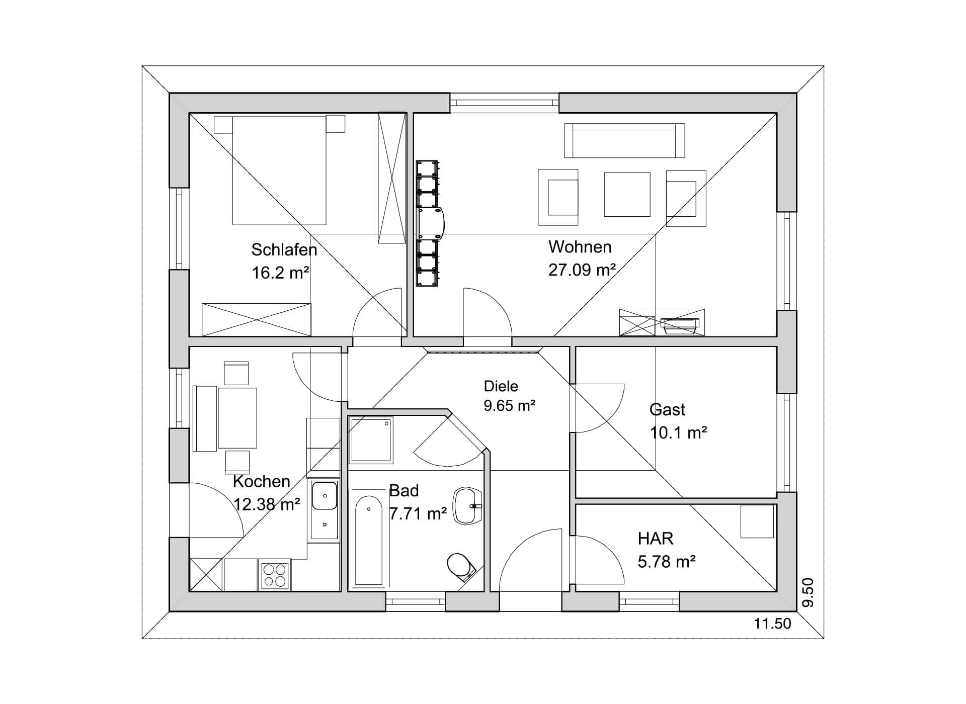
MELINDA

perfekter 4-Raum-Bungalow mit bestem Preis-Leistungsverzeichnis

Wohnfläche ca. 107 m²

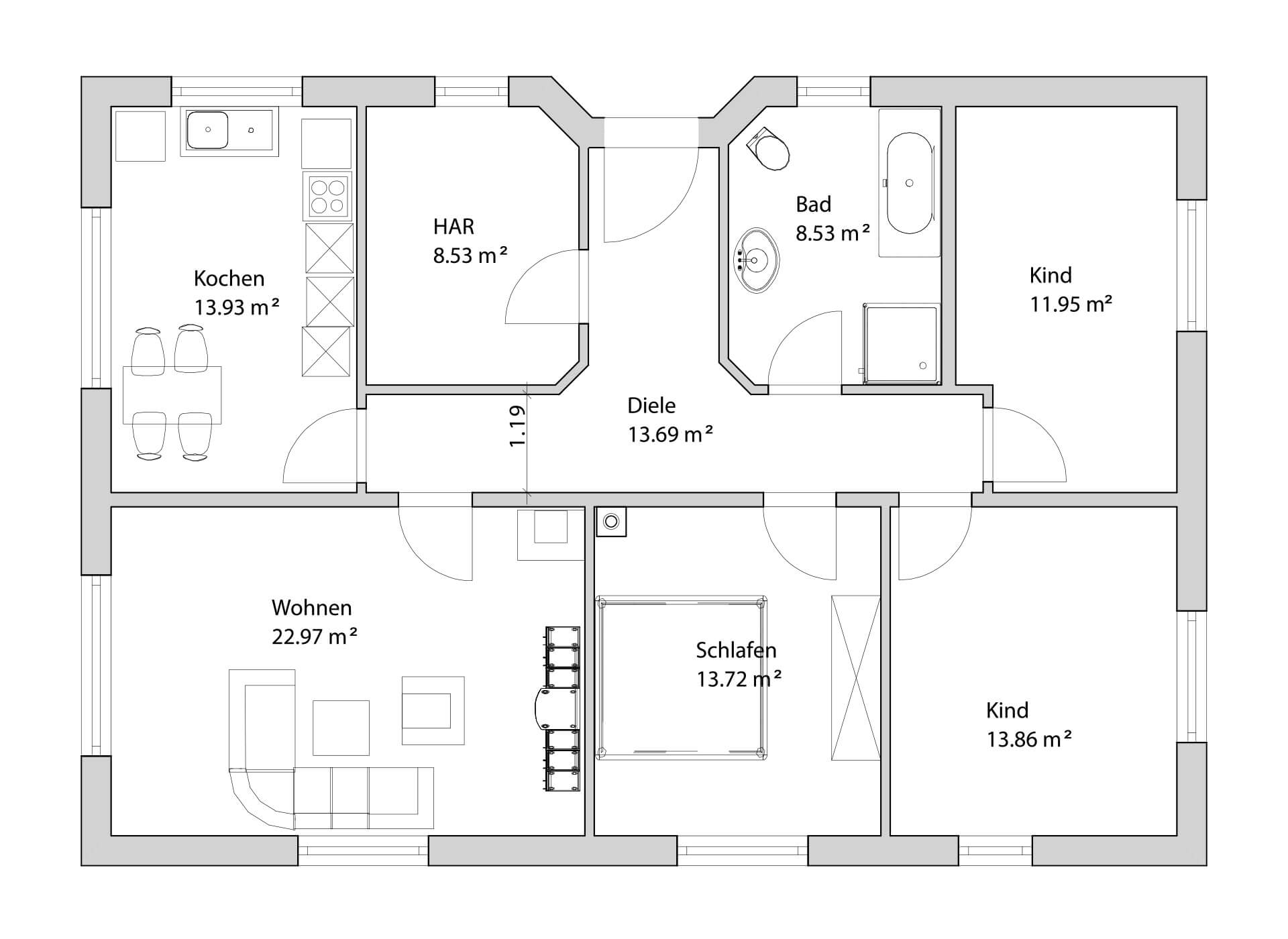
MELINDA XL

Bungalow mit Vordach
Wohnfläche ca. 128 m²